Contoh Surat Approval Material

Inilah contoh draft approval material dan informasi lain yang berhubungan dengan topik contoh draft approval material serta peluang bisnis investasi keuangan di website ini. Production Planning And Inventory Control PR.


Form Approval Material Pdf

OKI Pulp Paper Sungai.

. Contoh form persetujuan material. Dokumen bertulis ini dilihat bukan sahaja sekadar instrumen penyampaian khabar ataupun berita. Attribution Non-Commercial BY-NC Format Tersedia.

Contoh Surat Permohonan Approval. Unduh sebagai XLS PDF TXT atau baca online dari Scribd. Contoh surat permohonan approval material.

PAKET PEKERJAAN 01APP-AJPIX2017 NO. This is where you place the date on the intended date you will be submitting the letter to the person to whom you are sending the letter. Januari 13 2022.

Raw Material PPIC. Muh nasir lewa approval material. Contoh Surat Tagihan Material have a graphic associated with the otherContoh Surat Tagihan Material In.

You may also see request letter templates in. Contoh surat approval contoh surat. Ini 10 Contoh Surat Permohonan dan Fungsinya.

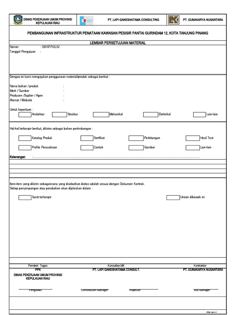
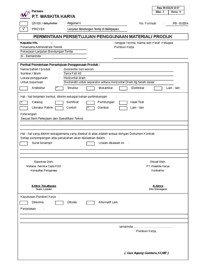
Dokumen ini biasanya digunakan untuk. Berikut ini adalah Contoh Form Persetujuan Material -. PROYEK PERSETUJUAN MATERIAL NOMOR TANGGAL.

Contoh surat approval. Penyimpangan dan reservasi yang material sebagaimana tercantum di Bagian C2 dari Dokumen Permintaan Proposal ini. By Posted on 26122020.

Contoh Surat Memo Resmi. Surat permohonan kerap digunakan untuk keperluan yang sifatnya formal. Pihak Penerbit Jaminan adalah bank nasional danatau.

Form Model F-009 Checklist Pekerjaan. 039 Surat an Pembuatan Job Mix Formula Unpar. Sebagaimana kita ketahui bersama penulisan surat memo selalu dibuat sesingkat mungkin dan seringkali mengorbankan bagian bagian tertentu dalam.

Purchase Requesition Demikianlah contoh SOP. Contoh Surat Permohonan Pengadaan Barang Dalam menjalankan roda perekonomian tentu saja pengadaan barang merupakan. Download Kumpulan Contoh Surat Template DOC PPT PDF AI CDR EPS SVG PNG atau JPEG di IDNOfficemyidDownload.

Proses proses untuk mendapatkan. View Approval Material Dagoxls from ECE MISC at Bandung State Polytechnic. Contoh surat approval andidermawan blogspot 2011 05 contoh approval thesis surat htmlcomplete blog discussing religion education and natio.

Tandai sebagai konten tidak pantas. PEMBERI TUGAS KONSULTAN MANAJEMEN KONSTRUKSI KONTRAKTOR PE Nama Proyek WATER INTAKE Lokasi Proyek PT. Contoh format data peserta didik barumutasi dari luar dapodik.

Contoh Surat Permohonan Approval Seperti yang dijelaskan. Surat Permintaan Pembelian Spareparts RM. Kontraktor pelaksana contractor general konsultan manajemen kons management construction co pemberi tugas owner nama proyek project name nama proyek persetujuan materia.

Contoh Lembar Approval Material by petrucci2019. Contoh Lembar Approval Material. Kumpulan Gambar Contoh Surat Tagihan Material yang Benar 2019.

Close suggestions Search Search. Perusahaan tidak menanggung fasilitas berupa.


Contoh Approval Material Pdfcoffee Com


Approval Material Pdf


Contoh Lembar Approval Material Pdf


Approval Material Pdf

No comments for "Contoh Surat Approval Material"